Beschrijving
Vrijstaande woning op royaal perceel met garage, volop mogelijkheden en gelijkvloers wonen.
Deze solide gebouwde vrijstaande woning met royale vrijstaande garage met verdieping (bouwjaar 1975) is prachtig gelegen op een ruim perceel van maar liefst 1.025 m². Een ideale plek voor wie ruimte, vrijheid en volop mogelijkheden zoekt.
De woning beschikt over vier slaapkamers, waarvan één slaapkamer met aangrenzende badkamer op de begane grond. Hierdoor is de woning niet alleen geschikt voor gezinnen, maar ook een uitstekende levensloopbestendige keuze.
Het aantrekkelijke woonhuis biedt volop potentie en is daarnaast ideaal voor liefhebbers van hobby’s, tuinieren of het creëren van extra werk- of opslagruimte. De zonnige achtertuin is gesitueerd op het noordwesten en dankzij de vrije ligging geniet u op elk moment van de dag ergens in de tuin van de zon.
De woning is keurig onderhouden en altijd met zorg bewoond, maar kan naar eigen smaak en wens worden gemoderniseerd. Daarnaast zijn er diverse verbouwings-, uitbouw- én verduurzamingsmogelijkheden, waardoor u hier een toekomstbestendige woning kunt realiseren op een mooie vrije locatie.
Maak snel een vrijblijvende afspraak voor een bezichtiging, om zelf te ervaren wat de woning biedt!
De woning is gelegen aan de rand van een ruim opgezette woonwijk met voldoende openbare parkeervoorzieningen. Het centrum van het dorp voor de dagelijkse boodschappen, basisscholen en kinderopvang zijn op korte afstand van de woning gesitueerd.
Beesd ligt centraal in het Betuwse rivierenlandschap aan de rivier de Linge.
Het vriendelijke dorp beschikt over een gevarieerd aanbod van winkels waaronder een supermarkt en enkele gerenommeerde speciaalzaken. U kunt uitgebreider winkelen in het nabij gelegen Geldermalsen, Culemborg of Leerdam. Beesd kent een actief verenigingsleven, diverse restaurants en heeft goede voorzieningen op het gebied van onderwijs, recreatie en sport, een schitterend dorpscentrum (beschermd dorpsgezicht) en het eeuwenoude familielandgoed Mariënwaerdt met uitgebreide recreatieve mogelijkheden.
Voor forensen is Beesd een uitstekende uitvalsbasis. Beesd is gunstig gesitueerd ten opzichte van belangrijke noord/zuid (A2) en oost/west (A15) verbindingen waardoor steden als Utrecht en ’s-Hertogenbosch in circa 20 autominuten te bereiken zijn. Amsterdam/Eindhoven en Rotterdam/Nijmegen zijn binnen 45 minuten met de auto bereikbaar. Het NS-station van Beesd is op 5 minuten fietsen van de woning gesitueerd.
Indeling
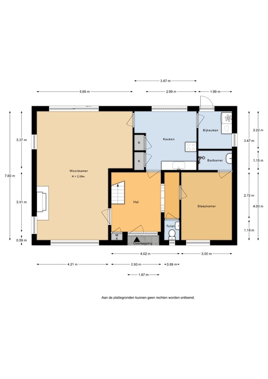
Via de overdekte entree bereikt u de centraal gelegen hal met een open trap naar de verdieping met vide, meterkast, een vaste kapstok/garderobe en een toiletruimte met deels betegelde wanden, staand closet, fonteintje en een raam.
Vanuit de hal is er toegang tot de woonkamer, keuken en een slaapkamer met en-suite badkamer. De badkamer is uitgevoerd met volledig betegelde wanden, een inloopdouche en een wastafel.
De ruime woonkamer is dankzij de rondom aanwezige raampartijen voorzien van veel daglicht en kent een natuurlijke, subtiele indeling van de leefruimtes. Het voorste gedeelte van de woonkamer leent zich uitstekend voor een royale zithoek, terwijl aan de achterzijde een prettige eethoek is gesitueerd, in directe verbinding met de keuken. De grote schuifpui zorgt voor een mooie verbinding met de achtertuin. De open haard bij de zithoek draagt bij aan extra sfeer en comfort tijdens de wintermaanden. De woonkamer is afgewerkt met een laminaatvloer.
Vanuit de woonkamer is er toegang tot de woonkeuken, voorzien van een eenvoudige keukenopstelling met vrijstaand fornuis en afzuigkap. Daarnaast zijn er twee praktische inbouw-provisiekasten aanwezig. De raampartij zorgt voor een prettige lichtinval en een fraai uitzicht op de achtertuin. Aansluitend aan de keuken bevindt zich de bijkeuken met wasmachineaansluiting, een raam in de zijgevel en een tuindeur met toegang tot de achtertuin.
Eerste verdieping
De overloop is voorzien van een dakkapel en een schuifluik met toegang naar de zolderverdieping. Vanuit de overloop is er toegang tot een techniekruimte met cv-opstelling. Op deze verdieping bevinden zich drie royale slaapkamers, allen voorzien van vaste kasten onder de knieschotten. De grootste slaapkamer beschikt over een vaste wastafel, terwijl de twee overige slaapkamers zijn voorzien van een balkondeur met toegang tot het gezamenlijke balkon.
De badkamer, gelegen aan de achterzijde van de woning, beschikt over een dakkapel en is uitgevoerd met volledig betegelde wanden, een ligbad, wastafel en een staand closet.
Tweede verdieping
De zolderverdieping is bereikbaar via een losse trap en biedt ruime, praktische bergruimte.
Tuin
Rondom de woning ligt een zeer royale, keurig onderhouden en gevarieerd aangelegde tuin, voorzien van sierbestrating, gazons en volwassen bomen en struiken. Aan de voorzijde wordt de tuin begrensd door een watergang. De ruime voortuin beschikt over een oprit met parkeergelegenheid voor meerdere auto’s.
Het terras bij de schuifpui biedt voldoende ruimte voor een royale eettafel met stoelen of een comfortabele loungeset, waardoor binnen en buiten op een prettige manier met elkaar worden verbonden.
De vrijstaande garage is in spouw gemetseld en uitgevoerd met een betonvloer en een zadeldak gedekt met dakpannen. De garage beschikt over een loopdeur naar de tuin, vensters in de zijgevels en dubbele houten deuren aan de voorzijde. De verdieping is bereikbaar via een losse trap. Daarnaast zijn er elektra- en wateraansluitingen aanwezig.
Bijzonderheden
- Vrijstaande, solide gebouwde woning (1978)
- Royaal perceel van ca 1.025m2
- ca 148 m2 woonoppervlak
- 4 slaapkamers; één met badkamer op de begane grond (levensloopbestendig)
- Vrijstaande garage met verdieping, voorzien van elektra en water
- Ruimte voor hobby en tuinieren
- Gelegen in een rustige woonomgeving, nabij dorpscentrum en voorzieningen
- Niet-zelfbewonings-, asbest- en ouderdomsclausule van toepassing
- Direct beschikbaar!
Plattegronden
Oude Waag 5 - Begane grond - 2D.jpg
Oude Waag 5 - Begane grond - 3D.jpg
Oude Waag 5 - 1e verdieping - 2D.jpg
Oude Waag 5 - 1e verdieping - 3D.jpg
Oude Waag 5 - Vliering - 2D.jpg
Oude Waag 5 - Vliering - 3D.jpg
Oude Waag 5 - Garage - 2D.jpg
Oude Waag 5 - Garage - 3D.jpg
Oude Waag 5 - Garage Vliering - 2D.jpg
Oude Waag 5 - Garage Vliering - 3D.jpg
Oude Waag 5 - Situatie - 2D.jpg
Oude Waag 5 - Situatie - 3D.jpg