Beschrijving
Achter de kenmerkende leilinden treft u deze buitenkans!
Op een unieke locatie in Beesd, aan de karakteristieke Voorstraat, staat deze markante en royale tussenwoning met achtertuin.
De indeling, authentieke karakteristieken en uitstraling van de woning zorgen samen voor een bijzondere sfeer en bieden volop mogelijkheden.
De woning verkeert grotendeels in originele staat en vormt daarmee een uitstekende basis om geheel naar eigen smaak en wensen te moderniseren. Dankzij de maatvoering en opzet biedt de woning uitstekende mogelijkheden om te worden getransformeerd tot een modern familiehuis, met behoud van karakter.
De woning ligt aan de karakteristieke Voorstraat in de oude kern van het dorp. Deze prachtige straat, omzoomd door fraaie leilinden, is een beschermd dorpsgezicht van maar liefst zo’n 900 meter lang. De heerlijke achtertuin is gelegen op het noorden en is tevens achterom te bereiken.
Maak snel een vrijblijvende afspraak voor een bezichtiging, om zelf te ervaren wat de woning biedt.
Beesd ligt centraal in het Betuwse rivierenlandschap aan de rivier de Linge.
Het vriendelijke dorp beschikt over een gevarieerd aanbod van winkels waaronder een supermarkt en enkele gerenommeerde speciaalzaken. U kunt uitgebreider winkelen in het nabij gelegen Geldermalsen, Culemborg of Leerdam. Beesd kent een actief verenigingsleven, diverse restaurants en heeft goede voorzieningen op het gebied van onderwijs, recreatie en sport, een schitterend dorpscentrum (beschermd dorpsgezicht) en het eeuwenoude familielandgoed Mariënwaerdt met uitgebreide recreatieve mogelijkheden.
Voor forensen is Beesd een uitstekende uitvalsbasis. Beesd is gunstig gesitueerd ten opzichte van belangrijke noord/zuid (A2) en oost/west (A15) verbindingen waardoor steden als Utrecht en ’s-Hertogenbosch in circa 20 autominuten te bereiken zijn. Amsterdam/Eindhoven en Rotterdam/Nijmegen zijn binnen 45 minuten met de auto bereikbaar. Het NS-station van Beesd is op 5 minuten fietsen van de woning gesitueerd.
Indeling
Via de voordeur met gietijzeren deurroosters betreedt u de statige en ruime hal.
Deze hal, voorzien van meterkast en trapopgang naar de eerste verdieping, is afgewerkt met de originele cementtegelvloer en paneeldeuren en biedt toegang tot de woonkamer, de tuingerichte eetkamer, de keuken en het deels betegelde toilet met staand closet en fonteintje. Vanuit de hal is tevens via een kelderluik de ruime kelder met voldoende stahoogte bereikbaar.
De woonkamer is middels en-suite deuren met boogvormige belijning en glas-in-loodpanelen opgedeeld in een voorkamer en een eetkamer. De voorkamer beschikt over twee hoge schuifvensters met originele binnenluiken en een natuurstenen schouw. De eetkamer is aan de achterzijde gesitueerd en voorzien van een raampartij met glas-in-lood bovenlichten en dubbele tuindeuren, die een fraaie verbinding met de achtertuin creëren. De woonkamer is afgewerkt met een massief houten mozaïekparket in blokpatroon, passend bij het karakter van de woning.
Aansluitend aan de hal bevindt zich de keuken met een eenvoudige keukenopstelling, voorzien van een vrijstaand fornuis met met elektrische kookplaat en oven, een afzuigschouw met afzuigkap en een vaatwasser. De raampartij zorgt voor een prettige lichtinval. De keuken is afgewerkt met deels betegelde wanden en keramische vloertegels.
Vanuit de keuken is de bijkeuken bereikbaar, voorzien van wasmachineaansluiting, cv-opstelling en een buitendeur die toegang geeft tot de achtertuin.
Eerste verdieping
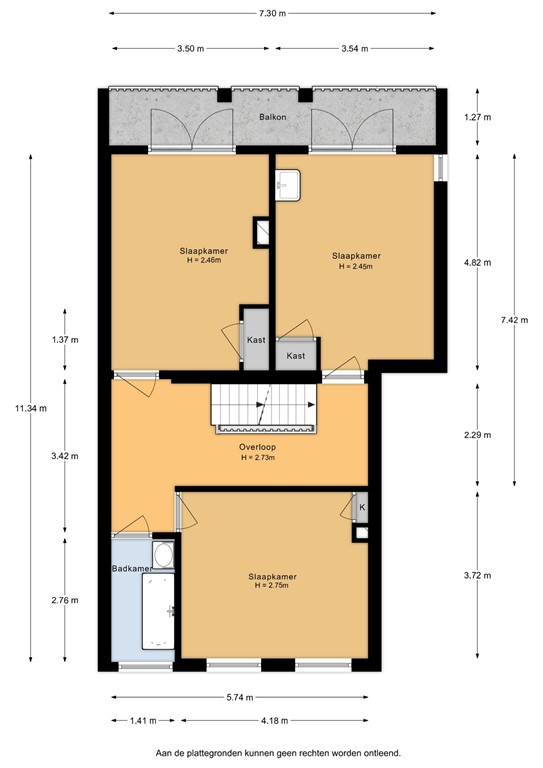
Ruime overloop met vaste trapopgang naar de tweede verdieping. Op deze verdieping bevinden zich drie slaapkamers, allen voorzien van een inbouwkast. De slaapkamers aan de achterzijde van de woning beschikken over dubbele balkondeuren met glas-in-loodbeglazing, die toegang geven tot het balkon aan de achterzijde van de woning.
De badkamer is aan de voorzijde van de woning gelegen en is voorzien van deels betegelde wanden, een ligbad met douchegelegenheid en een wastafel. De eerste verdieping is afgewerkt met oorspronkelijke paneeldeuren.
Tweede verdieping
Ruime zolderverdieping met dakvensters. De tweede verdieping biedt volop mogelijkheden voor het realiseren van een overloop, bergruimte en één of meerdere extra slaapkamers.
Tuin
De achtertuin is gelegen op het noorden en volledig bestraat met sierbestrating en enkele borders met gevarieerde vaste beplanting. Er is voldoende plaats voor een ruime eettafel met stoelen of een heerlijke loungeset. Middels een afsluitbare poort is de tuin achterom bereikbaar.
De erfgrens wijkt af van de huidige erfafscheiding. De tuin is groter dan deze op het eerste gezicht doet vermoeden. Het bij de woning behorende perceel is door het Kadaster vastgelegd met grensmarkeringen (paaltjes).
Bijzonderheden
- Karakteristieke en royale tussenwoning met potentie
- Oorspronkelijk bouwjaar circa 1920, kenmerkende bouwstijl
- Unieke locatie in de oude dorpskern van Beesd
- Drie slaapkamers op de eerste verdieping, waarvan twee met balkon
- Ruime zolderverdieping met dakvensters en mogelijkheden voor extra kamer(s)
- Achtertuin op het noorden, achterom bereikbaar
- Woning kan geheel naar eigen wens worden gemoderniseerd en verduurzaamd
- Niet-zelfbewonings-, asbest- en ouderdomsclausule van toepassing
- Direct beschikbaar!
Plattegronden
Voorstraat 110 - Begane grond - 2D.jpg
Voorstraat 110 - Begane grond - 3D.jpg
Voorstraat 110 - 1e verdieping - 2D.jpg
Voorstraat 110 - 1e verdieping - 3D.jpg
Voorstraat 110 - 2e verdieping - 2D.jpg
Voorstraat 110 - 2e verdieping - 3D.jpg
Voorstraat 110 - Kelder - 2D.jpg
Voorstraat 110 - Kelder - 3D.jpg
Voorstraat 110 - Situatie - 2D.jpg
Voorstraat 110 - Situatie - 3D.jpg