Beschrijving
Deze vrijstaande woning (bouwjaar 1992) met garage is uitstekend gesitueerd op een riant perceel van 519m2 in een rustige, zeer gewilde woonwijk. Een aantrekkelijk woonhuis met volop mogelijkheden voor bijvoorbeeld gezinnen met (jonge) kinderen.
Aan de zijkant kijkt u vanuit de woning uit over de landerijen. De zonnige achtertuin is gesitueerd op het zuidoosten. Door de vrije ligging van de woning geniet u ieder moment van de dag ergens in de tuin van de zon.
De woning is keurig onderhouden en bewoond maar dient op punten naar eigen smaak en wens gemoderniseerd te worden.
Een heerlijk woonhuis waar u op korte termijn al van kunt gaan genieten.
Maak snel een vrijblijvende afspraak voor een bezichtiging, om zelf te ervaren wat de woning biedt!
De woning is gelegen in een groene en kindvriendelijke woonomgeving in een ruim opgezette woonwijk met voldoende openbare parkeervoorzieningen en slechts bestemmingsverkeer.
Voorzieningen zoals supermarkten, een huisarts, apotheek en basisscholen op korte afstand. Ook zijn er sport- en speelvoorzieningen in de buurt, ideaal voor gezinnen. Alles wat je nodig hebt is binnen handbereik, terwijl je toch geniet van een rustige, landelijke woonomgeving.
Het vriendelijke dorp Ochten is centraal gelegen in de gemeente Neder-Betuwe, te midden van het uitgestrekte rivierenlandschap van Gelderland. Het dorp bevindt zich nabij de rivier de Waal en wordt omringd door groene weilanden en boomgaarden.
Dankzij de gunstige ligging ten opzichte van uitvalswegen, waaronder de A15, zijn steden als Tiel, Wageningen en Arnhem goed bereikbaar. Het dorp is goed ontsloten met het openbaar vervoer. Er zijn regelmatige busverbindingen naar nabijgelegen plaatsen zoals Tiel en Geldermalsen, waar aansluitingen zijn op het treinverkeer. Het treinstation van Geldermalsen ligt op korte afstand, waardoor ook grotere steden als Utrecht en ‘s-Hertogenbosch eenvoudig bereikbaar zijn. Hierdoor combineert Ochten het rustige, landelijke wonen met uitstekende verbindingen naar stedelijke voorzieningen.
Indeling
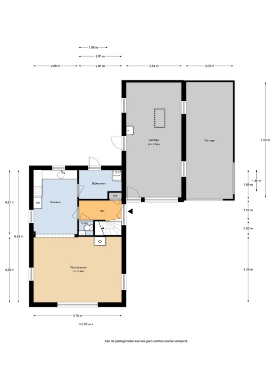
Ruime hal met open trap naar de verdieping, meterkast, deels betegelde toiletruimte met staand closet en fonteintje, toegang tot de woonkamer.
De ruime woonkamer met rondom daglicht zorgt voor een natuurlijke en subtiele scheiding van de leefruimtes. Het gedeelte voor in de woning leent zich perfect voor een riante zithoek, waardoor je aan de achterzijde een fijne eethoek creëert, nabij de keuken. De houtkachel bij de zithoek zorgt voor extra sfeer en warmte tijdens de koude wintermaanden.
De in hoek opgestelde keuken met massief houten frontafwerking en een gelamineerd aanrechtblad is voorzien van 4-pits gaskookplaat, afzuigschouw, oven, koelkast en vaatwasser. De raampartij geeft u prettig licht in de keuken en een fraai uitzicht op de achtertuin.
Aansluitend aan de keuken de bijkeuken met wasmachine aansluiting, CV opstelling en tuindeur naar de achtertuin.
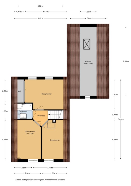
Eerste verdieping
Overloop met toegang tot 3 ruime slaapkamers. De grootste slaapkamer is gelegen aan de achterzijde van de woning en voorzien van een vaste kastenwand. Badkamer met ligbad, wastafelmeubel met wastafel en badkamerkast.
Tweede verdieping
Zolder verdieping bereikbaar via schuifluik
Tuin
Rondom de woning ligt een keurig onderhouden en gevarieerd aangelegde tuin met sierbestrating, gazons, enkele bomen en volwassen struiken. Aan de achterzijde van de woning is een royaal terras gerealiseerd. Dankzij de zuidwestelijke ligging is het terras heerlijk zonnig vanaf de middag tot zonsondergang. Er is voldoende plaats voor een ruime eettafel met stoelen of een heerlijke loungeset. Achterin de tuin staat een houten berging, praktisch om allerhande zaken in op te bergen.
De royale garage is solide gebouwd en geschakeld aan de woning. Het geheel is voorzien van een traditioneel zadeldak, waarmee niet alleen een karakteristieke uitstraling wordt gecreëerd, maar tevens ruimte ontstaat voor een volwaardige zolderverdieping, bereikbaar via een vlizotrap. Als extra bijzonderheid beschikt de garage over een heuse smeerput – perfect voor de autoliefhebber of de handige klusser. De garage heeft een kanteldeur en een toegangsdeur aan de voorzijde. Aan de tuinzijde is een loopdeur en een venster met zicht op de achtertuin.
Aansluitend aan de garage is de tweede garage gerealiseerd. Deze ruimte is voorzien van een betegelde vloerafwerking en een sectionaaldeur aan de voorzijde.
De ruime oprit biedt plaats aan meerdere auto's. De kavel wordt aan de begrenst door een schutting van houten panelen en een metalen sierhekwerk met afsluitbare poort.
Bijzonderheden
- Vrijstaande woning met landelijk uitzicht
- ca 95m2 woonoppervlak
- 3 slaapkamers
- Ruime kavel van totaal 519m2
- Ligging in rustige woonwijk aan de rand van het dorp
- Ruime dubbele garage met zolderverdieping
- De woning kan geheel naar eigen wens en smaak gemoderniseerd worden
- Niet bewoning-, asbest en ouderdomsclausule van toepassing
- Notaris ter keuze verkoper; Aitton Notarissen, Tiel
- Direct beschikbaar!
Plattegronden
Papekamp 5 - Begane grond - 2D.jpg
Papekamp 5 - Begane grond - 3D.jpg
Papekamp 5 - 1e verdieping - 2D.jpg
Papekamp 5 - 1e verdieping - 3D.jpg
Papekamp 5 - Situatie - 2D.jpg
Papekamp 5 - Situatie - 3D.jpg
Papekamp 5 - Vliering - 2D.jpg
Papekamp 5 - Vliering - 3D.jpg