Beschrijving
Deze royale bungalow (1969) met vrijstaand multifunctioneel bijgebouw én vrijstaande garage is uitstekend gesitueerd op een zeer royaal perceel van totaal maar liefst 1.433m2. Een aantrekkelijk woonhuis met volop mogelijkheden voor bijvoorbeeld gezinnen met (jonge) kinderen.
Een absolute pluspunt is het sfeervolle bijgebouw, een volwaardige woning met de mogelijk tot een praktijkruimte, kantoor aan huis, of wellicht een gastenverblijf?
Maak snel een vrijblijvende afspraak voor een bezichtiging, om zelf te ervaren wat de woning biedt!
Het Lingedorp Rhenoy is gelegen aan de noordkant van rivier de Linge in de gemeente West-Betuwe tussen Geldermalsen en Leerdam. Het dorp telt circa 915 inwoners, wordt omringd door mooie natuur en kent een actief en sportief verenigingsleven.
Het vriendelijke dorp heeft zelf geen winkelvoorzieningen. In het nabij gelegen Beesd vindt u de faciliteiten zoals een supermarkt, bakker en sportverenigingen. U kunt uitgebreid winkelen in het dichtbij gelegen Leerdam. De basisschool ‘De Bloeiende Betuwe’ ligt op enkele minuten fietsen van de woning. Voor overige voorzieningen zoals middelbare scholen bent u aangewezen op Leerdam of Geldermalsen. Rhenoy is gunstig gesitueerd ten opzichte van de belangrijke noord/zuid (A2) en oost/west (A15) verbindingen. Via de N327 is de A2 in 5 minuten bereikbaar waardoor steden als Utrecht en ’s-Hertogenbosch in circa 25 autominuten te bereiken zijn. Het NS-station van Beesd is op 3,7 kilometer van de woning gesitueerd.
Indeling
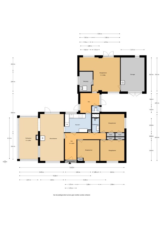
De ruime hal met garderobe is centraal gesitueerd aan de voorzijde van de woning. De hal verbindt al de woonvertrekken van deze levensloop bestendige bungalow.
De woonkamer met voldoende daglicht zorgt voor een natuurlijke en subtiele scheiding van de leefruimtes. Het gedeelte voor in de woning leent zich perfect voor een riante zithoek.
De houtkachel zorgt voor sfeer en warmte tijdens de koude wintermaanden.
De raampartij met tuindeur verbindt de woonkamer met de achtertuin.
In de serre met rondom vensters en zicht op de tuin is er ruimte voor een extra zithoek en een royale eettafel.
De woonkamer heeft een gestuukt plafond en een massief houten vloerafwerking.
Aan de andere zijde van de hal treft u de volledig betegelde badkamer met inloopdouche en wastafelmeubel met wastafel en design radiator.
De 3 slaapkamers zijn rondom de badkamer gesitueerd en zijn allen voorzien van vaste inbouwkasten.
De gesloten keuken heeft een landelijke keukenopstelling met massief houten aanrechtblad en keramische spoelbak. De keuken is uitgerust met een 4-pits gas kookplaat, RVS afzuigschouw, oven, koelkast, vrieskast en een comfortabele vaatwasser. De raampartij geeft u prettig licht op het werkblad en uitzicht op de achtertuin.
Vanuit de keuken doorgang naar de hal aan de achterzijde van de woning. Hier bevindt zich de volledig betegelde toiletruimte met hangend closet en venster. De tussenhal geeft toegang tot de achtergelegen slaapkamer en heeft zowel een tuindeur naar het terras als naar de zijkant van de woning.
De royale slaapkamer aan de achterzijde van de woning heeft dubbele tuindeuren en een praktische waskamer / bergkast met wasmachineaansluiting en cv opstelplaats. Aansluitend bevindt zich de inpandige garage die vanuit binnen bereikbaar is.
Het degelijke in houtskelet gebouwde bijgebouw is een verhaal op zich;
In de luwte van de tuin, maar met alle luxe en comfort van een volwaardige woning, bevindt zich dit prachtig afgewerkte bijgebouw van ca. 45 m² woonoppervlak. Deze (zelfstandige) woonruimte is ideaal als gastenverblijf, mantelzorgwoning, kantoor aan huis of als plek voor een inwonende jongvolwassene.
Indeling en afwerking:
De begane grond beschikt over een ruime en lichte woonkamer met dubbele openslaande tuindeuren, voorzien van een plavuizen vloer met vloerverwarming voor optimaal wooncomfort, het hele jaar door. De open keuken is modern afgewerkt en volledig uitgerust met inbouwapparatuur.
De badkamer is stijlvol en praktisch ingericht met een douchecabine wastafelmeubel met wastafel en wasmachineaansluiting. Daarnaast is er een separaat toiletruimte met een modern hangend closet.
Op de verdieping bevindt zich een voorzolder en een comfortabele slaapkamer, perfect als rustige slaap- of werkkamer.
Technische voorzieningen:
• Eigen cv-installatie en volledig onafhankelijke verwarmingsvoorziening
• Aparte meterkast met tussenmeter, moderne groepenkast en elektra-indeling
• Hoogwaardige isolatie en duurzame afwerkingen
Het bijgebouw biedt volledige zelfstandigheid en is instapklaar!
Tuin
Rondom de woning ligt de zeer royale, keurig onderhouden en gevarieerd aangelegde tuin met sierbestrating, gazons, enkele bomen en volwassen struiken. De extra brede en zwaar aangelegde oprit is oprit is volledig bestraat voor het parkeren van meerdere voertuigen.
Het terras aan de achterzijde van de woning is voorzien van een zonnescherm. Dit beschutte terras biedt voldoende plaats voor een ruime eettafel met stoelen. Aansluitend aan dit terras een houten tuinhuis, praktisch om allerhande zaken in op te bergen.
Centraal in het (speel)gazon een zonnig tweede terras.. , een heerlijke plaats om te genieten.
De royale vrijstaande garage (5.05 x 5.93 m.) is uitgevoerd in hout met een zadeldak en een elektrisch bedienbare roldeur.
De kavel wordt aan de straatzijde begrenst door een metalen sierpoort.
Bijzonderheden
- Vrijstaande bungalow op royaal perceel
- 144 m2 woonoppervlak, 4 slaapkamers
- Levensloopbestendig, alles gelijkvloers
- Kavel totaal 1433 m2, ca 57meter diep!
- Fantastisch bijgebouw met 45m2 woonoppervlak
- Inpandige garage
- Vrijstaande garage met zadeldak (5.05 x 5.93 m.)
- Ruime parkeermogelijkheid op eigen terrein
De woning heeft de bestemmingsomschrijving ‘Wonen’, bestemmingplan Rhenoy 2013. Hierdoor zijn er in combinatie met de bestemming Wonen diverse vestigingsmogelijkheden zoals bijvoorbeeld kantoor of praktijk aan huis.
U kunt zelf alvast informeren naar de mogelijkheden binnen bestemmingsplan Kijk daarvoor eens op het omgevingsloket: https://omgevingswet.overheid.nl/regels-op-de-kaart/
Plattegronden
Dorpsstraat 6 - Begane grond - 2D.jpg
Dorpsstraat 6 - Begane grond - 3D.jpg
Dorpsstraat 6 - Bijgebouw Begane grond - 2D.jpg
Dorpsstraat 6 - Bijgebouw Begane grond - 3D.jpg
Dorpsstraat 6 - Bijgebouw Vliering - 2D.jpg
Dorpsstraat 6 - Bijgebouw Vliering - 3D.jpg
Dorpsstraat 6 - Situatie - 2D.jpg
Dorpsstraat 6 - Situatie - 3D.jpg